Bringing engineering & construction the best way possible — through quality, cost efficiency, safety, and on-time delivery.
Aedo Design & Build is a design and construction company based in Makati City, Philippines. Since 2017, we have been delivering structural, architectural, and fit-out solutions that meet the highest standards of engineering practice.
We combine rigorous structural analysis with practical construction management, ensuring every project is safe, cost-efficient, and completed on time.
End-to-end engineering and construction solutions — from blueprint to build.
Comprehensive pre-construction drawings, architectural plans, and technical specifications tailored to project requirements.
Rigorous structural engineering — value engineering, design optimization, and forensic investigation of existing structures.
Full-scope construction management for architectural, structural, and interior fit-out projects — delivered safely and on schedule.
Purpose-built mobile tools for Filipino engineers and students.
A quick-reference mobile toolkit for structural engineering based on the National Structural Code of the Philippines (NSCP). Built for engineers and students who need fast, reliable code lookups on the field or in the classroom.
A complete construction project management app built for Filipino contractors and engineers. Track expenses, monitor progress, manage capital, and forecast project costs — all from your phone, on-site or in the office.
A portfolio built on trust, technical rigor, and client satisfaction.
Where engineering precision meets architectural ambition — a large-span steel structure designed to stand the test of time.
A full structural analysis and design of a Cockpit Arena facility — featuring complex radial steel trusses, long-span framing, and NSCP-compliant seismic detailing. Every member sized for safety, efficiency, and constructability.
Inquire Similar Project
Five levels of engineered precision — a robust multi-storey parking structure designed for capacity, safety, and longevity.
A complete structural design and consultancy for a 5-storey parking facility. Features multi-level RC framing, ramp systems, and full NSCP-compliant seismic and wind load analysis — built to serve thousands of vehicles for decades.
Inquire Similar Project
A 1,800 sqm industrial powerhouse — where world-class brand standards meet rigorous structural engineering.
Full structural design and consultancy for a 2-storey Coca-Cola factory and office facility in Davao. Covering 1,800 sqm of floor area, this project demanded industrial-grade framing, heavy equipment load considerations, and NSCP-compliant design to meet international quality standards.
Inquire Similar Project
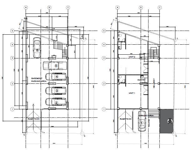
Rising above Makati — a 917 sqm vertical office complex engineered from basement to roof deck for urban excellence.
Complete structural design and consultancy for a 5-storey office building with basement and roof deck in Carmona, Makati. Covering 917.42 sqm of floor area, the design tackles deep basement retention, multi-level gravity and lateral load systems, and full NSCP seismic compliance in one of Metro Manila's most demanding urban environments.
Inquire Similar Project
A 1,681 sqm arena of steel and precision — engineered for crowd, performance, and decades of service.
Full structural design and consultancy for a large-span Cockpit Arena facility in Concepcion, Tarlac. Spanning 1,681 sqm, the project features complex radial steel roof framing, arena-grade load analysis, and complete NSCP seismic and wind compliance — delivering a structure that's as bold as it is safe.
Inquire Similar Project
A home built on engineering you can trust — where every beam, column, and slab is designed for your family's safety.
Full structural design and consultancy for a 2-storey residential building in Davao City. Every structural element — from footing to roof framing — was carefully sized and detailed to NSCP standards, ensuring a safe, durable, and cost-efficient home for generations to come.
Inquire Similar Project
Proof that great buildings are built by great teams — architecture and engineering working as one.
A collaborative design-and-build project combining architectural vision with structural engineering excellence. Architecture by AJ Architects, structural design and construction management by Aedo Engineering — delivering a well-crafted 2-storey structure built the right way, every step of the way.
Inquire Similar Project
A 1,650 sqm industrial-grade facility built for heavy use, heavy loads, and high performance.
Full structural design and consultancy for a large-footprint Auto Shop facility in Cavite City. With 1,650 sqm of floor area, the design accommodates heavy vehicle loads, wide-span column-free bays, and industrial-grade structural systems — all engineered to NSCP standards for durability and safety.
Inquire Similar Project
Small footprint, big engineering — a compact yet robust commercial structure designed for Canlaon City's growing business district.
Complete structural design for a 2-storey commercial building in Canlaon City, Negros Oriental. Covering 210 sqm of floor area, every structural detail was optimized for efficiency — delivering a safe, code-compliant, and commercially ready building in one of Negros Oriental's emerging urban centers.
Inquire Similar Project
Four floors of engineered confidence — rising above Zamboanga City's commercial landscape with precision and purpose.
Full structural design and consultancy for a 4-storey commercial building in Zamboanga City. With 368 sqm of floor area per level, the design delivers efficient multi-storey RC framing, NSCP-compliant lateral load systems, and seismic detailing suited for Zamboanga City's seismic zone — built to perform and built to last.
Inquire Similar Project
A 1,096 sqm corporate landmark standing proud in the heart of Canlaon City — engineered to match the ambition of its owners.
Full structural design and consultancy for F&C Canlaon Holdings Corporation's 2-storey commercial building in Canlaon City, Negros Oriental. Spanning 1,096 sqm of floor area, the structure features efficient RC framing and full NSCP compliance — a testament to the partnership between a forward-thinking client and precise engineering.
Inquire Similar Project
A 314 sqm home designed with care — because every family deserves a structure built on solid engineering.
Complete structural design for a 2-storey residential building in Balangiga, Eastern Samar. Covering 314 sqm of floor area, the design prioritizes structural safety, seismic resilience, and cost efficiency — delivering a well-engineered home in one of Eastern Samar's coastal communities.
Inquire Similar Project
A compact 140 sqm home — proving that great engineering isn't about size, it's about precision.
Full structural design and consultancy for a 2-storey residential building in Manjuyod, Negros Oriental. At 140 sqm, every sqm was maximized — with efficient structural layout, NSCP-compliant detailing, and seismic considerations tailored for the region, delivering a safe and durable family home.
Inquire Similar Project
A precision-engineered residential extension bringing new life to an established home in BF Homes, Paranaque — seamlessly blending modern structural integrity with the existing architecture for a safe, stylish, and lasting expansion.
Inquire Similar Project
A landmark three-storey residence perched in the cool highlands of Tagaytay — engineered for scenic living with full structural integrity, seismic compliance, and a layout designed to maximize the breathtaking views.
Inquire Similar ProjectEngineering tutorials, structural design walkthroughs, and construction insights.
Mat Footing Design — STAAD Foundation Advance · 4 Storey School Bldg
5 Storey Office Bldg. with Basement — Makati, Philippines · Part 1
Connection Details — Steel Frame Analysis & Design of Overhead Water Tank · Part 4
Have a project in mind? Reach out and we'll make it happen.